Rare villa jumelle rénovée 7.5 pièces, 396m2 bruts, terrain de 823m2

Rue des Biolles 14b, 1964 Conthey
CHF 1'490'000.00
Région
Plaine
Logement
375m²
à convenir
6
2
3

Description

Caractéristiques générales                                                                             

Destination                       Vente                                Référence                      0825 - CO

Type de bien                     Villa jumelle                      Zone                               Résidentielle villas plaine

Année de construction    1976                                 Rénovations                  2014 - 2025

Nombre de pièces            7.5                                    Etat général                   Entièrement rénové

Surface nette habitable   254 m2                              Surface du terrain         823 m2

Volume SIA                      1’050 m3                           Disponibilité                   A convenir

Prix                                   CHF 1’490'000.-

Localité                            Plan-Conthey                    Adresse                          Rue des Biolles 14b

 

Caractéristiques détaillées

Environnement               Calme – Rue 30 km/h

Vue                                   Panoramique dégagée et imprenable

Exposition                       Sud-est

Proximité                         7 minutes de Sion – 3 minutes de l’entrée de l’Autoroute - Restaurants –

                                         Commerces - Transports publics

Intérieur                           Magnifiques volumes, parquet massif (chambres et salon)

 

Equipement Primaire

Canalisations                 Réseau communal             Eau                                   Réseau communal

Energie                           Réseau électrique et gaz

 

Equipement Technique

Chauffage                      Electrique au sol                 Chauffage auxiliaire        Cheminée à gaz

Télévision/internet        Par câble                            Stores extérieurs             Electrique

Arrosage                        Fixe

 

Nous vous proposons une villa jumelle très spacieuse et de caractère, idéalement située dans un quartier résidentiel calme à Plan-Conthey, à proximité immédiate de toutes les commodités.

Extérieurs et annexes

Le jardin et les espaces extérieurs ont bénéficié d’un aménagement particulièrement soigné, offrant verdure et tranquillité avec une vue panoramique imprenable au sud-est. En plus d’une terrasse de 53 m2, un pavillon de 12 m2 offre un endroit de détente en bordure de la pelouse au sud. A l’est trois places de parcs extérieures sont également disponibles.

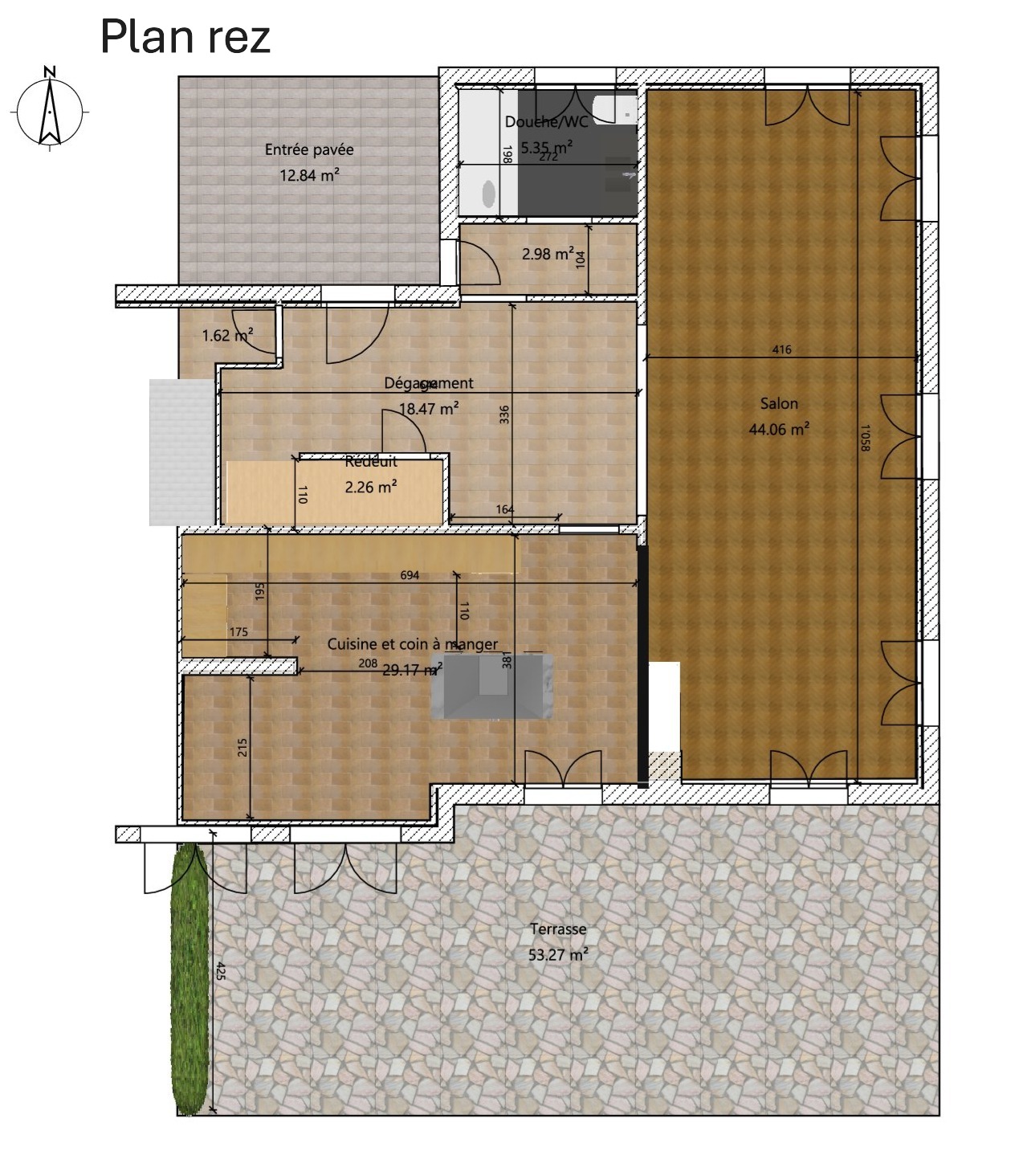
Rez-de-chaussée

Dès l’entrée, vous êtes accueillis par un hall généreux menant à une cuisine moderne entièrement équipée, comprenant notamment un réfrigérateur américain, une cave à vins, un îlot central de cuisson et un coin repas séparé.
À l’est, un vaste salon traversant nord/sud, baigné de lumière et doté d’une cheminée à gaz (8 kW), constitue un espace de vie chaleureux et convivial. Une salle d’eau complète le niveau.

Étage

L’espace nuit se compose de cinq chambres lumineuses, ainsi que d’une salle d’eau moderne. Un hall polyvalent, idéal comme espace bureau, complète l’étage.

Sous-sol

Entièrement excavé, en plus de la buanderie, un bureau et un WC y sont aménagés. Il offre également de nombreuses possibilités d’aménagement selon vos besoins (salle de jeux, cave, salle de sport, home cinéma, garages, etc.).

Informations techniques

Construite en 1976, la villa a bénéficié d’une isolation particulièrement soignée (15 cm de laine de verre, pare-vapeur et doublage en plaque Alba de 8 cm).
Le chauffage est assuré par des nattes électriques au sol et au plafond, réglables individuellement par thermostats programmables. La cheminée à gaz du salon peut aisément chauffer tout le rez-de-chaussée.

Rénovations

La propriété a été régulièrement entretenue et rénovée. Les dernières rénovations ont été effectuées en 2025.

Points forts

  • Quartier calme (zone 30 km/h)
  • Espaces extérieurs arborés et entretenus
  • Vue panoramique et dégagée sud/est
  • À seulement 7 minutes de Sion
  • Proche des transports publics et de l’entrée d’autoroute
  • Volumes généreux et lumineux
  • Villa entièrement rénovée avec soin

👉 Un bien rare à découvrir sans tarder.
Notre agence se tient à votre disposition pour organiser une visite de ce lieu exceptionnel.